657 Orange Center Road

Orange, Connecticut 06477

Status
For Sale
Square Feet
5,260
Beds
0
Price
$699,000
Type
Commercial For Sale
Garages
Baths
3
MLS
24143603

Price

$699,000

Contact an Agent

Interior Details

Interior Size
5,260 Sq Ft
Bedrooms
0
Bathrooms
3
Rooms Total
Garage

Exterior Details

Lot Size
0.37 Acres
Roof
Asphalt Shingle,EPDM Synthetic Rubber
Sewer
Septic
Construction
Construction
Cooling
Central Air

Other Information

Property Tax
$15,184
Assessed Value
$521,800
Elementary School
NULL
Middle School
NULL
High School
NULL

About Property

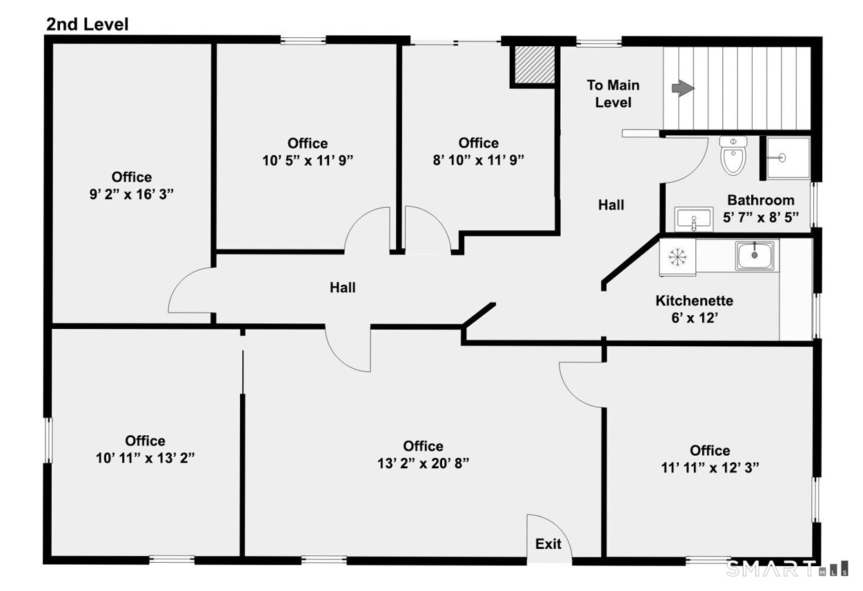
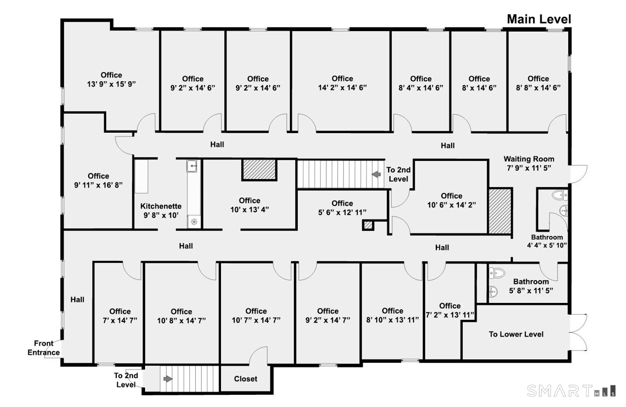
**657 Orange Center Road**, a 5,260 square foot, two-story office building, has undergone a comprehensive renovation and is situated in the heart of Orange, Connecticut. This turnkey property comprises 23 private offices, 17 on the main level and 6 upstairs, making it an ideal choice for individuals seeking to generate revenue through tenant expenses. The building is designed to be divided into three distinct spaces: two spaces on the main level each with its own bathroom and conference room with a shared kitchenette, and one on the upper level with a full bathroom and kitchenette. The building can be separated into two approximately 2,000 square foot spaces on the main level and one approximately 1,300 square foot space on the second level. The building's HVAC systems have been upgraded and are equipped with three furnaces, one natural gas on the second floor. The first floor is serviced by two furnaces, one is newer and fueled by propane, the second is fueled by oil. The building features three electric panels, two for the first floor and one for the second floor, providing flexibility in optimizing space utilization. Additionally, the parking lot has been recently paved and resealed.
Listed by Coldwell Banker Realty, Joe Scarpellino. Data sourced from SmartMLS

Schedule Showing