8 Lapstrake Court

Groton, Connecticut 06355

Status
For Sale
Square Feet
1,805
Beds
3
Price
$545,000
Type
Single Family For Sale
Garages
2
Baths
2
MLS
24155311

Price

$545,000

Contact an Agent

Interior Details

Interior Size
1,805 Sq Ft
Bedrooms
3
Bathrooms
2
Rooms Total
Garage
2

Exterior Details

Lot Size
0.28 Acres
Roof
Asphalt Shingle
Sewer
Public Sewer Connected
Construction
Construction
Cooling
Ductless,Heat Pump,Split System

Other Information

Property Tax
$6,021
Assessed Value
$221,200
Elementary School
Per Board of Ed
Middle School
Groton Middle School
High School
Fitch Senior

About Property

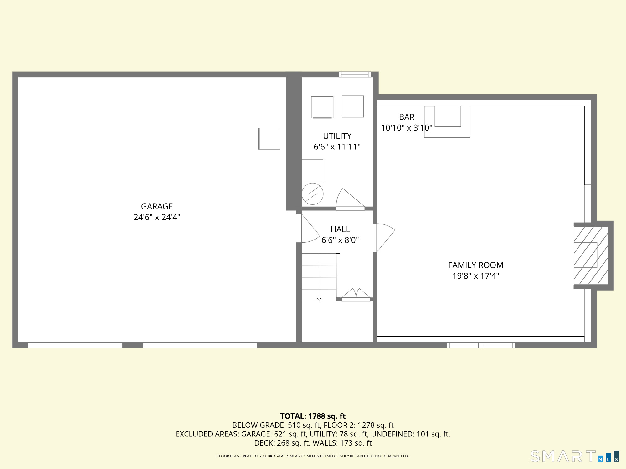
3-bedroom home with two full baths situated on a 0.28-acre corner lot with a two-car garage! The attractive split foyer entry leads up to an inviting main level featuring an open concept design that connects the kitchen, dining room, and living room, highlighted by vaulted, beamed ceilings and a picture window that enhances the sense of openness and natural light. The dining room provides access to the backyard, stepping out to a small balcony that leads down to a lower TREX composite deck, with a beautiful stone patio around the back of it ideal for nice grilling days, while a partial corner fencing offers added privacy. The main level includes the primary bedroom with a private full bath, along with two additional bedrooms and a second full bath. The lower level offers additional living space with a large family room featuring a brick fireplace, a laundry room, and walk-out access through the garage. Energy efficient features consist of Thermopane windows and a generator connection with generator included. Notable updates include a newer roof with 50-year shingles and a boiler, both installed in 2022, along with TREX composite deck added in 2021. Enjoy all the charm and appeal of living in Mystic, with its coastal setting, vibrant downtown, and easy access to local amenities.
Listed by RE/MAX Coast and Country, Gregory Broadbent. Data sourced from SmartMLS


Included Appliances

Schedule Showing